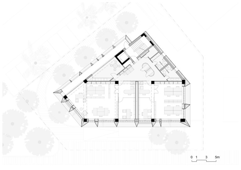
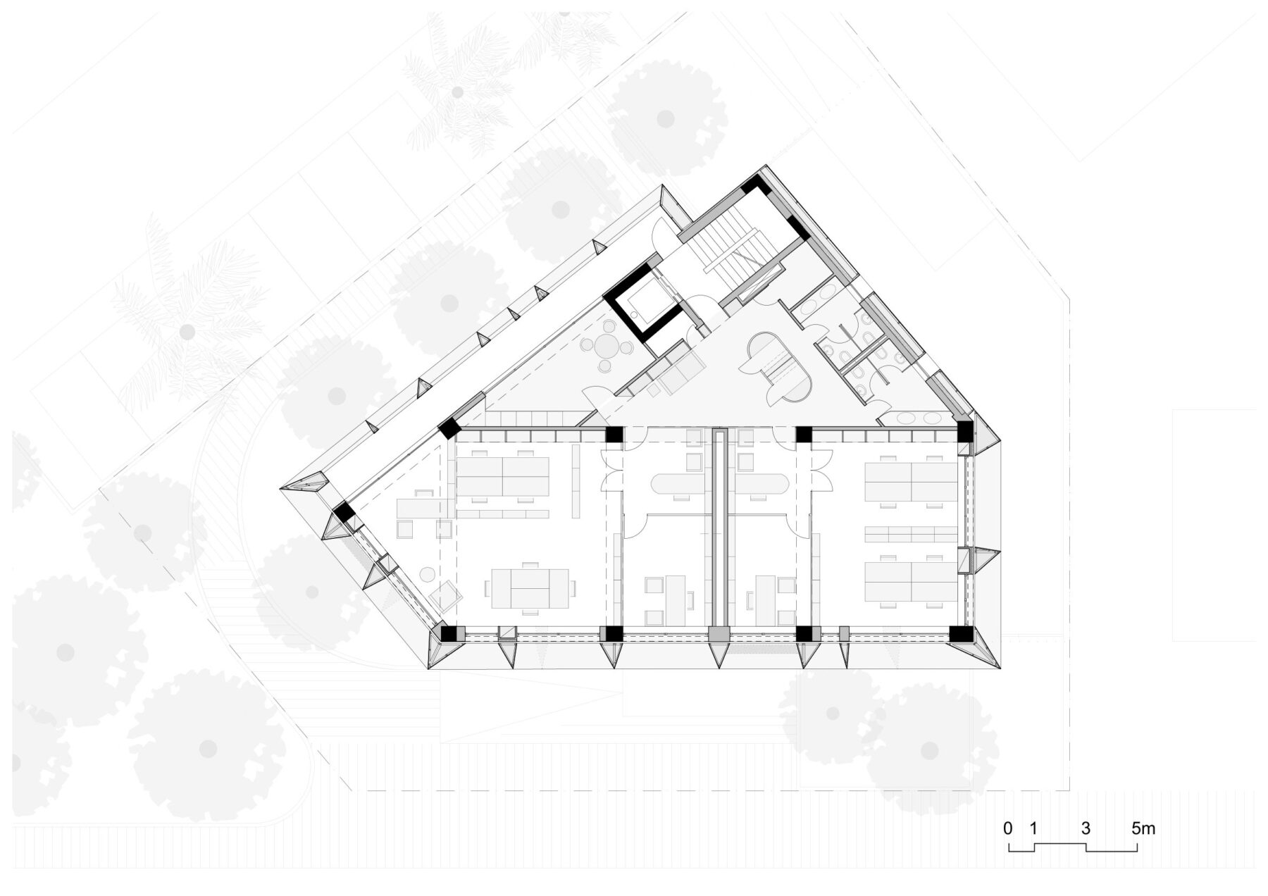
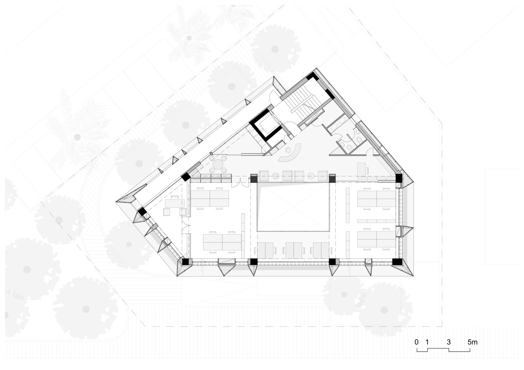
Office Building in Voula

2022-2024

/
/
/

Contributors

architects
C. Kizis, Y. Kizis
project team
C. Kizis, Y. Kizis, A. Raptis, G. Farazis, P. Papaioannou
structural design
C. Christidis
electro-mechanical installations
INSTA - C. Zobolas