Centre for Asia Minor Studies. Restoration of a Listed Building in Plaka, Athens

2021 - 2022

/
/

Information

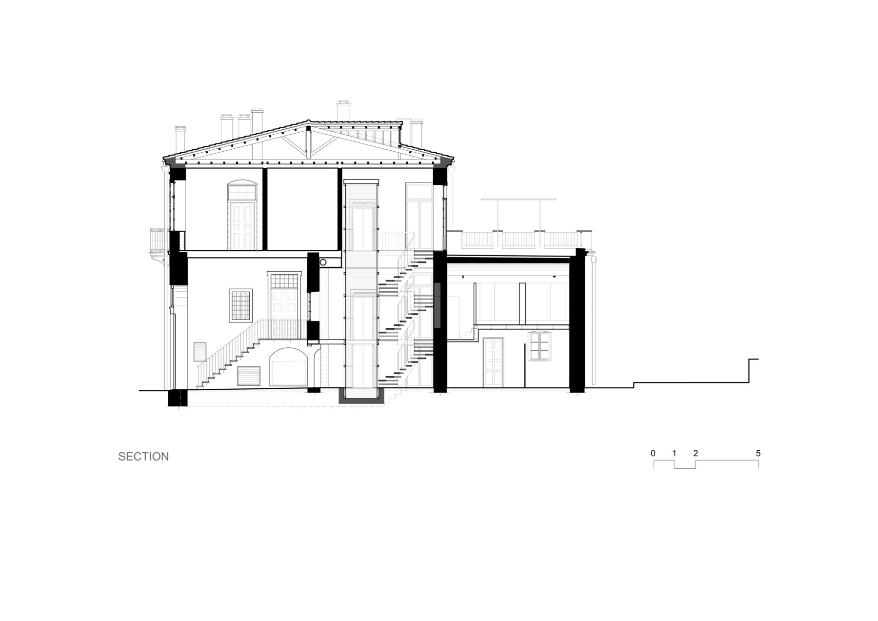
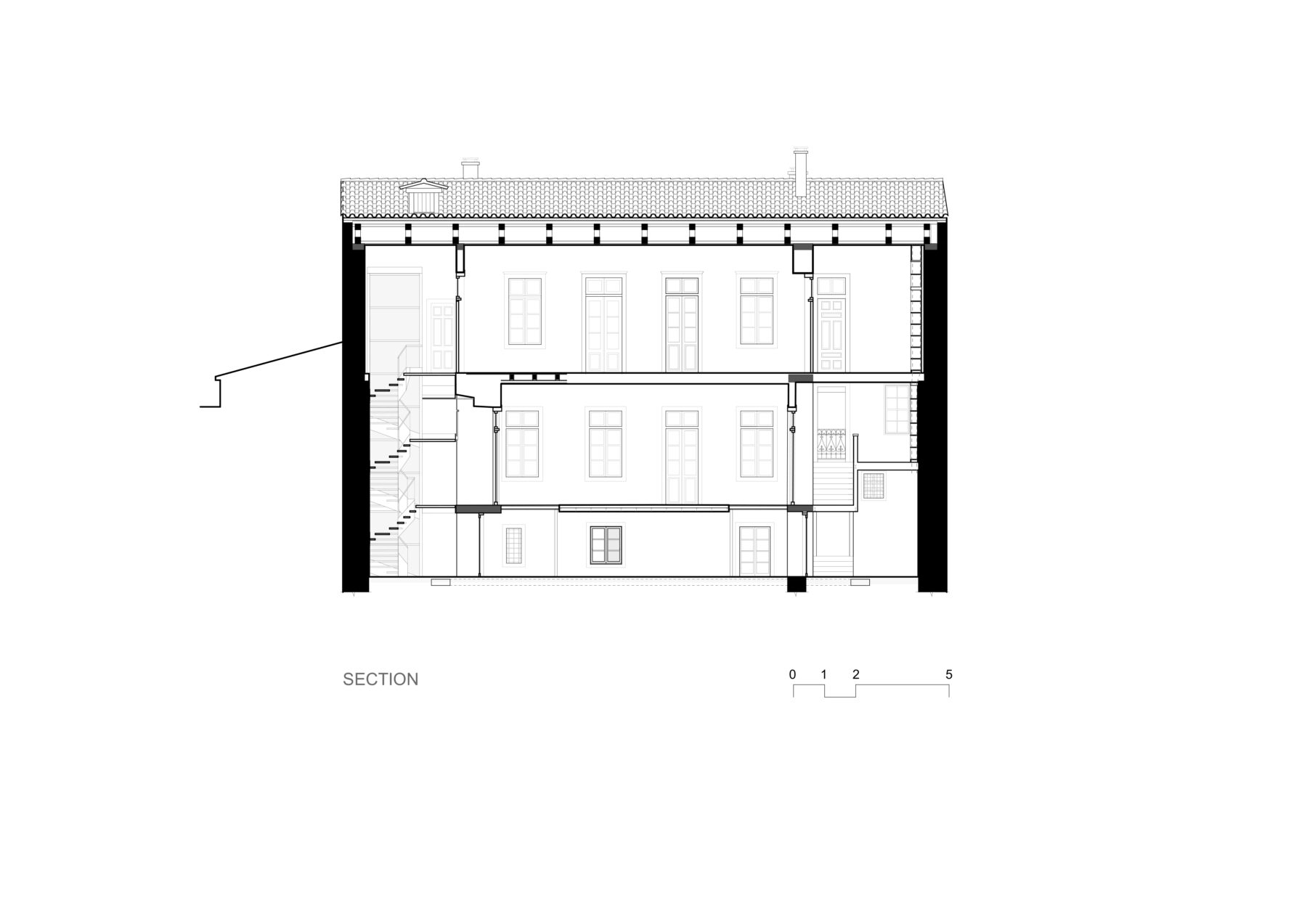
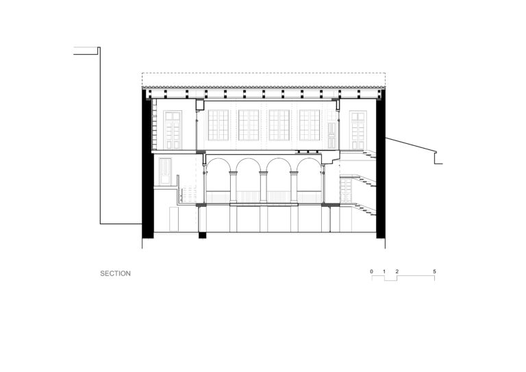
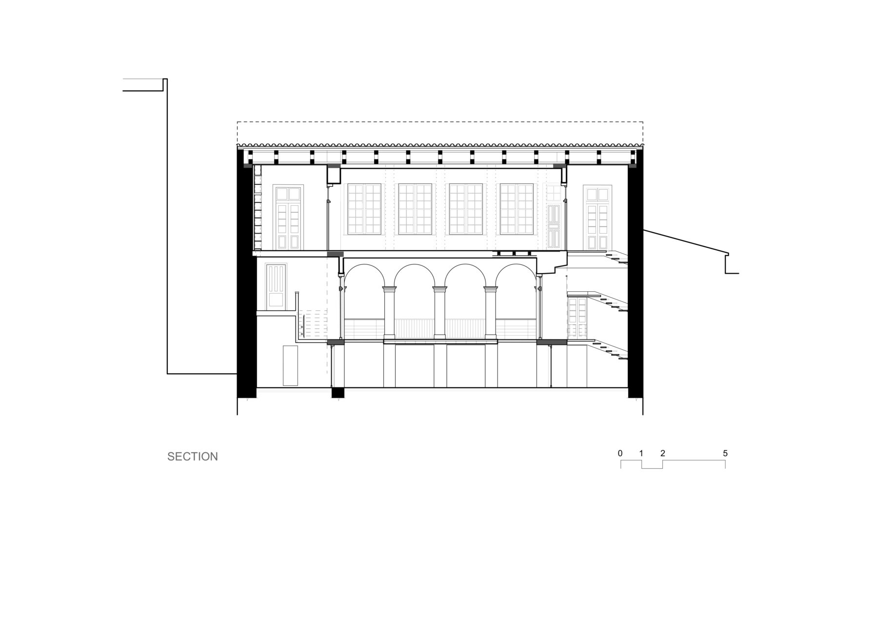
The building is located on Kydathineon street, at the eastern area of the historic centre of Plaka. Since 1982, it has been housing the centre of Asia Minor Studies. Its morphology follows that of a typical early Athenian residence, demonstrating a flat front elevation while revealing a more three-dimensional approach at the rear, with the two wings surrounding the central courtyard. The balanced analogies are achieved through the measured symmetry of the building, that is also embellished with neoclassical decorations.

The main alterations to the building take effect in order to restore its state, which currently render it unsafe for public use, and improve the current room arrangement and circulation, by also making it an accessible to all building. Extra care has been sought when intervening to the interior space, so as not to alter the character of the building.

/

Contributors

ARCHITECTS
Y. Kizis
ASSOCIATE ARCHITECTS
Y. Pantazis, A. Raptis, Y. Kalomenska
CONSULTANTS
STRUCTURAL DESIGN
EPILYSI
ELECTRIC/MECHANIC ENGINEERING
TEAM
CONSERVATION AND RESTORATION
AEINAES